2025.12.24
自然に囲まれた穏やかな環境の中で、暮らしにも、仕事にも使える古民家です。
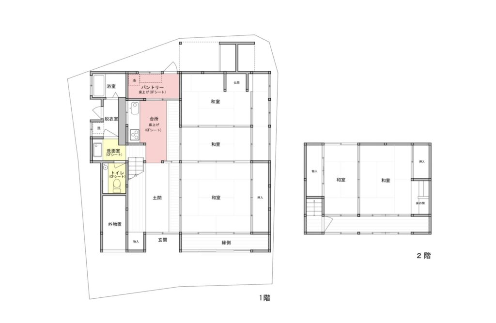
建物は昔ながらの趣を残しつつ、キッチン・洗面所・トイレは改修して新しくなります。
価格はリフォーム費用も含んだ価格になります。
トイレは下水に繋がり、清潔な水洗トイレを設置、洗面所は脱衣室とは別の独立洗面です。
(↓写真は改修前に撮影したものです)



古民家の魅力である縁側と土間があり、縁側では外の景色を眺めながらゆったりとした時間を、土間では来客対応や作業スペース、店舗利用など、使い方次第で可能性が広がります。
1階・2階、部屋数がしっかり確保されているため、住居としてはもちろん、カフェやギャラリー、アトリエなどのお店づくりにもおすすめです。







●こんな方におすすめ
• 千早赤阪村で古民家暮らしをしたい方
• カフェ・小さなお店を始めたい方
• DIYを楽しみながら空間をつくりたい方
• 自然の中で、暮らしと仕事を両立したい方
●物件情報
・売買価格:880万円
・駐車場:1台(隣地駐車場6台まで賃貸可)
・延床面積:105.27㎡
・建築面積:82.64㎡
・トイレ:水洗(下水接続済み)
・住所:大阪府南河内郡千早赤阪村東坂
自然、歴史、暮らしが重なる千早赤阪村で、この場所ならではの時間と空間をつくってみませんか。
ご興味のある方は、お気軽にお問い合わせください。
●お問い合わせ
・千早赤阪村空き家バンク公式LINEへお願いします
